ΝΕΑ ΠΟΛΥΚΑΤΟΙΚΙΑ Α+ , ΚΑΡΑΙΣΚΑΚΗ 16 , ΖΩΓΡΑΦΟΥ
16648
wp-singular,portfolio_page-template-default,single,single-portfolio_page,postid-16648,wp-theme-bridge,wp-child-theme-bridge-child,bridge-core-3.0.7,qode-page-transition-enabled,ajax_fade,page_not_loaded,,qode-child-theme-ver-1.0.0,qode-theme-ver-29.4,qode-theme-bridge,wpb-js-composer js-comp-ver-6.10.0,vc_responsive
 

ΝΕΑ ΠΟΛΥΚΑΤΟΙΚΙΑ Α+ , ΚΑΡΑΙΣΚΑΚΗ 16 , ΖΩΓΡΑΦΟΥ

Category
Κατοικίες προς πώληση
About This Project
Διατίθενται:
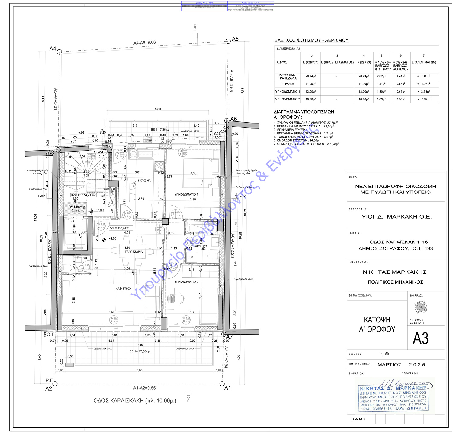
2 Διαμερίσματα  προσόψεως 48,00 τ.μ. σε  Α΄ , Β ‘ , όροφο   και 1 Διαμέρισμα προσόψεως 50,76 τ.μ. στον Γ ‘ όροφο.
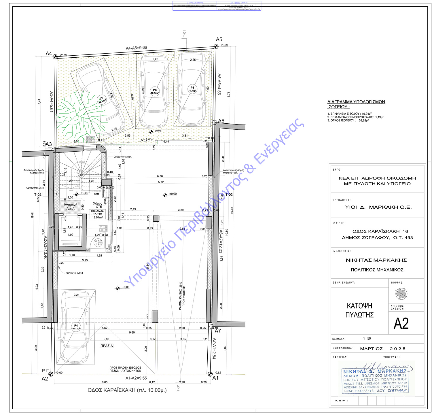
Αποτελούνται από : Υ/Δ  , 1 μπάνιο , κουζίνα, σαλόνι. Τα δάπεδα θα είναι από  Γρανιτοπλακάκια Α’ ποιότητος . Θα υπάρχει αυτόνομο σύστημα  θέρμανσης –  ψύξης  με αντλίες θερμότητας , ηλιακός θερμοσίφωνας, συναγερμός. Διατίθενται θέσεις στάθμευσης  και αποθήκες στην πιλοτή  και το υπόγειο και  φωτοβολτα’ι’κά για το κοινόχρηστο ρεύμα. Ενεργειακή κατηγορία Α+ .
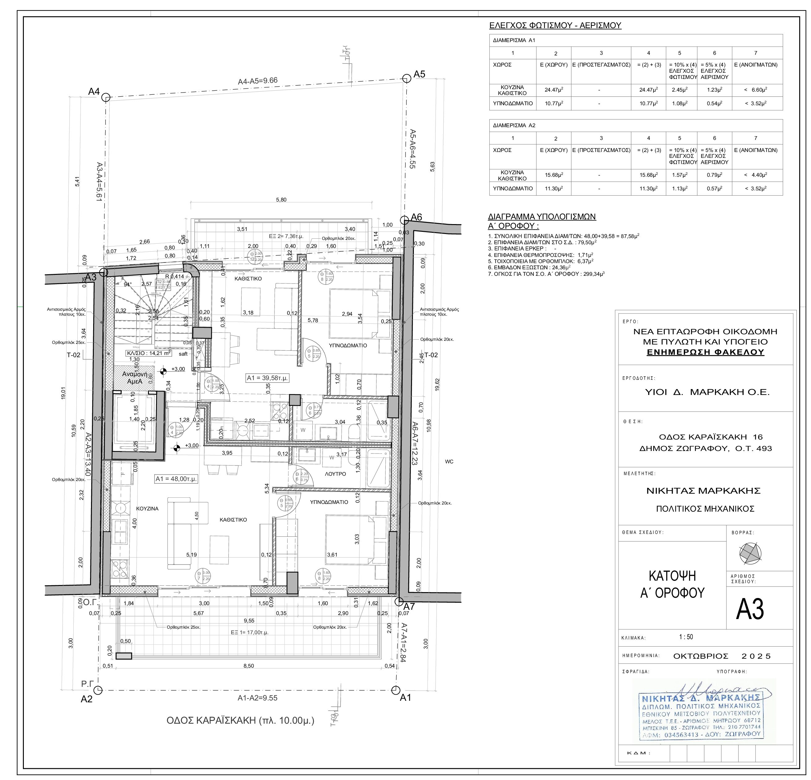
2 Διαμερίσματα  ακαλύπτου 39,58 τ.μ. σε  Α΄ , Β ‘ , όροφο .
Αποτελούνται από : Υ/Δ  , 1 μπάνιο , κουζίνα, σαλόνι. Τα δάπεδα θα είναι από  Γρανιτοπλακάκια Α’ ποιότητος . Θα υπάρχει αυτόνομο σύστημα  θέρμανσης –  ψύξης  με αντλίες θερμότητας , ηλιακός θερμοσίφωνας, συναγερμός. Διατίθενται   φωτοβολτα’ι’κά για το κοινόχρηστο ρεύμα. Ενεργειακή κατηγορία Α+ .
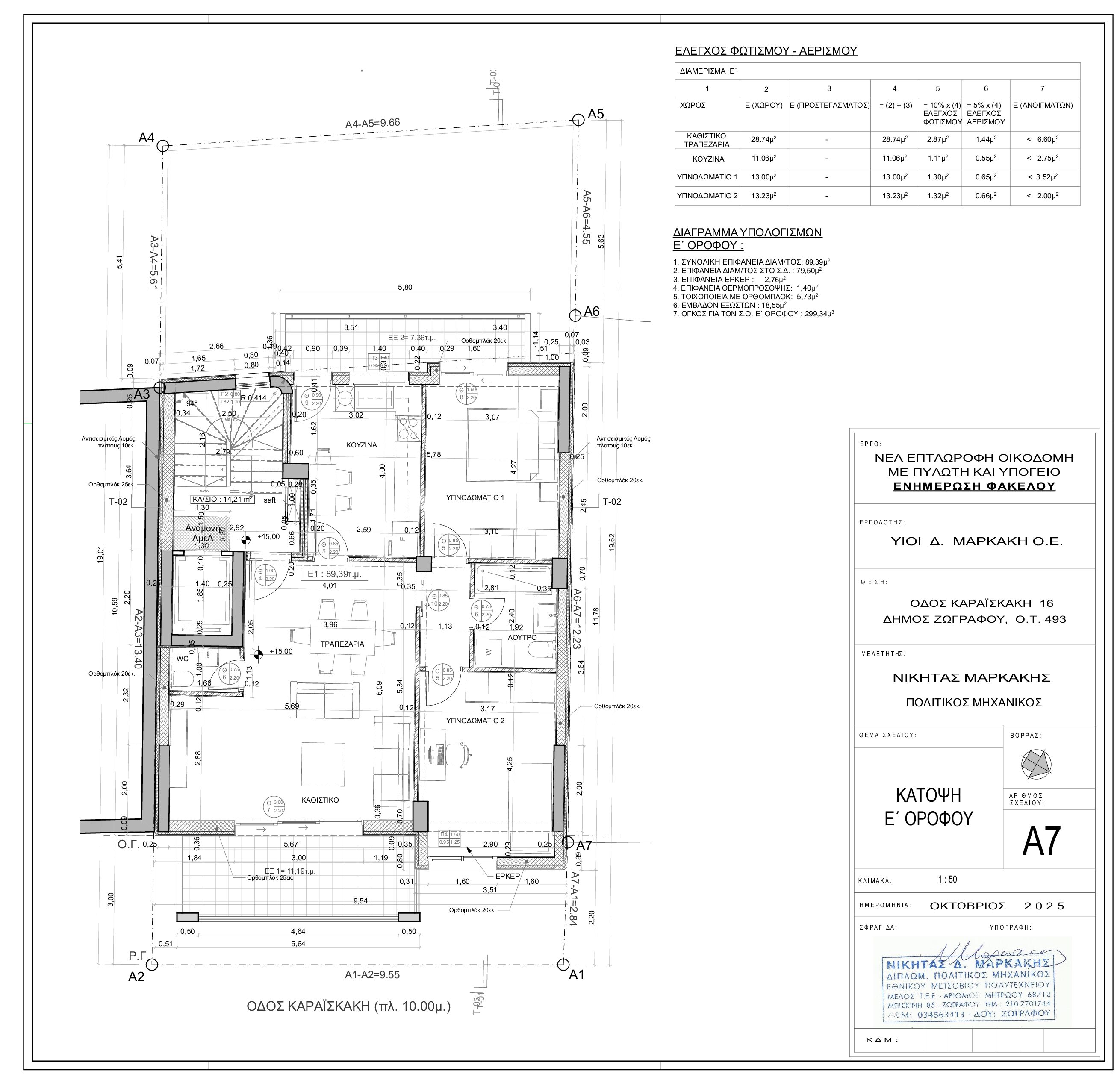
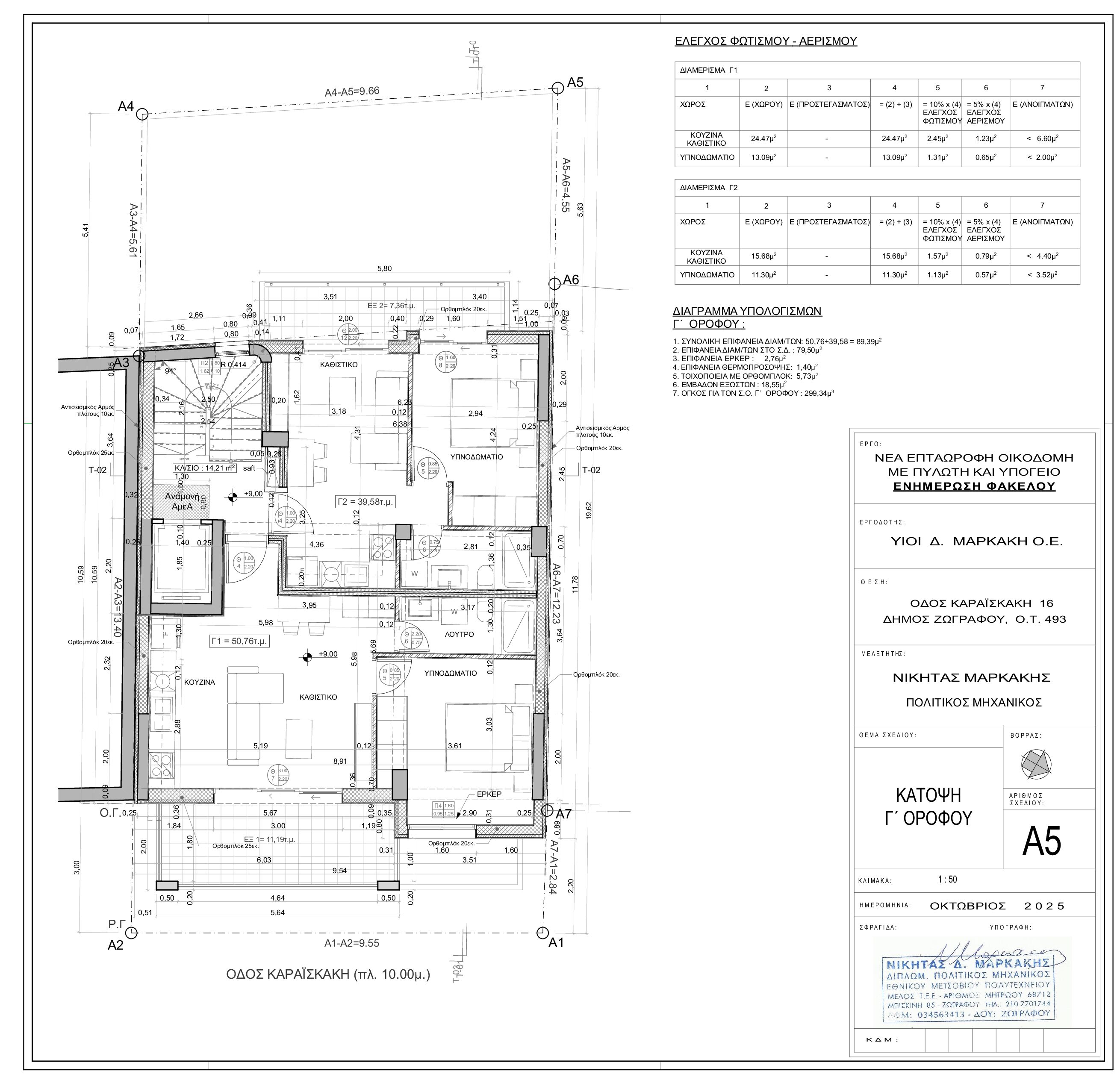
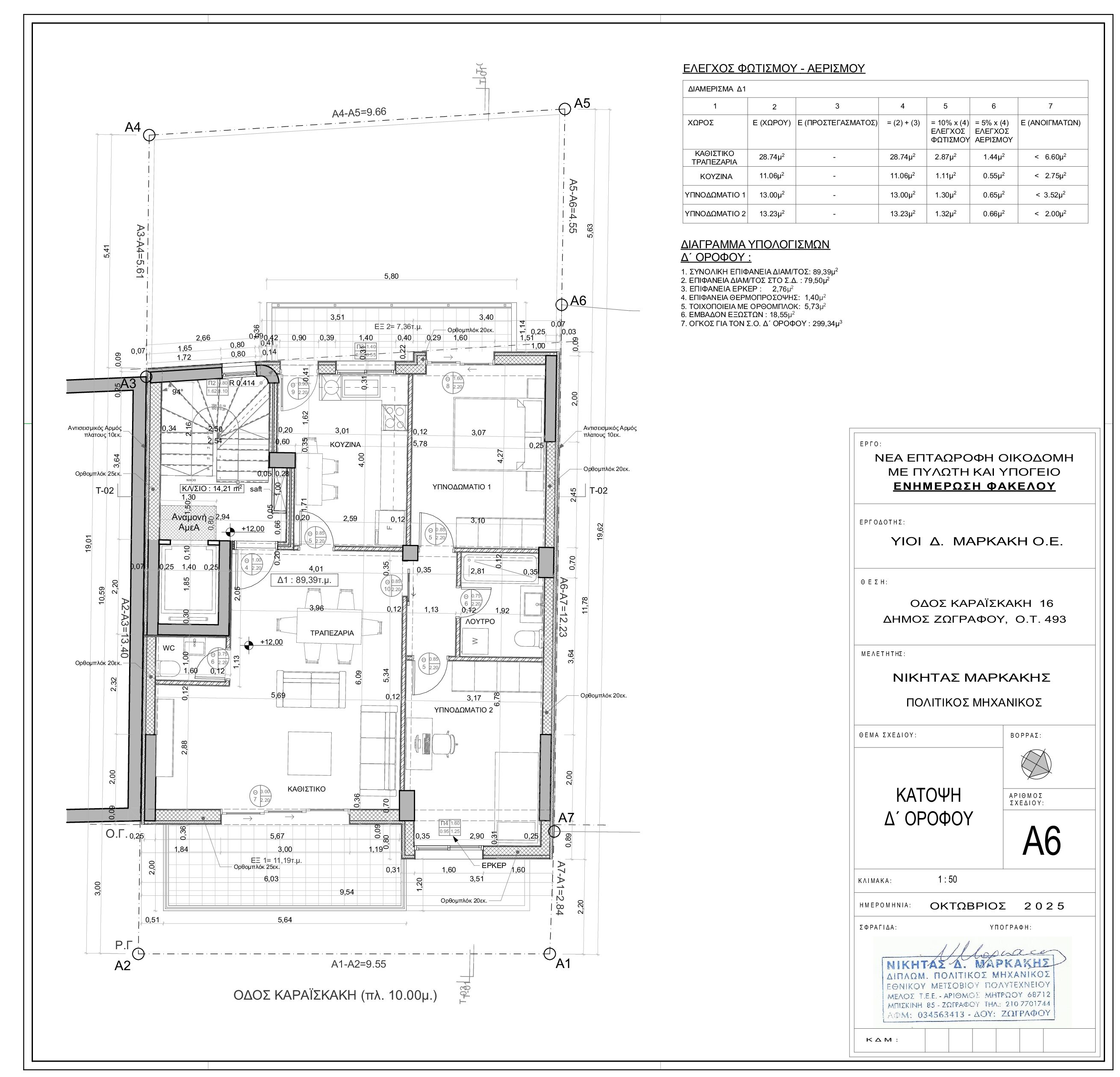
2 Διαμερίσματα 89,39 τ.μ. σε  Δ΄, Ε΄ , όροφο.
Αποτελούνται από : 2 Υ/Δ , 1 W.C. , 1 μπάνιο , κουζίνα, σαλόνι. Τα δάπεδα θα είναι από  Γρανιτοπλακάκια Α’ ποιότητος . Θα υπάρχει αυτόνομο σύστημα  θέρμανσης –  ψύξης  με αντλίες  ερμότητας , ηλιακός θερμοσίφωνας, συναγερμός. Διατίθενται θέσεις στάθμευσης  και αποθήκες στην πιλοτή  και το υπόγειο και  φωτοβολτα’ι’κά για το κοινόχρηστο ρεύμα. Ενεργειακή κατηγορία Α+
2 Διαμερίσματα 89,39 τ.μ. σε  Δ΄, Ε΄ , όροφο.
Αποτελούνται από : 2 Υ/Δ , 1 W.C. , 1 μπάνιο , κουζίνα, σαλόνι. Τα δάπεδα θα είναι από  Γρανιτοπλακάκια Α’ ποιότητος . Θα υπάρχει αυτόνομο σύστημα  θέρμανσης –  ψύξης  με αντλίες  ερμότητας , ηλιακός θερμοσίφωνας, συναγερμός. Διατίθενται θέσεις στάθμευσης  και αποθήκες στην πιλοτή  και το υπόγειο και  φωτοβολτα’ι’κά για το κοινόχρηστο ρεύμα. Ενεργειακή κατηγορία Α+
Όλα τα διαμερίσματα είναι υπό κατασκευή με προβλεπόμενη  ημερομηνία παράδοσης τον Ιούλιο του 2027.
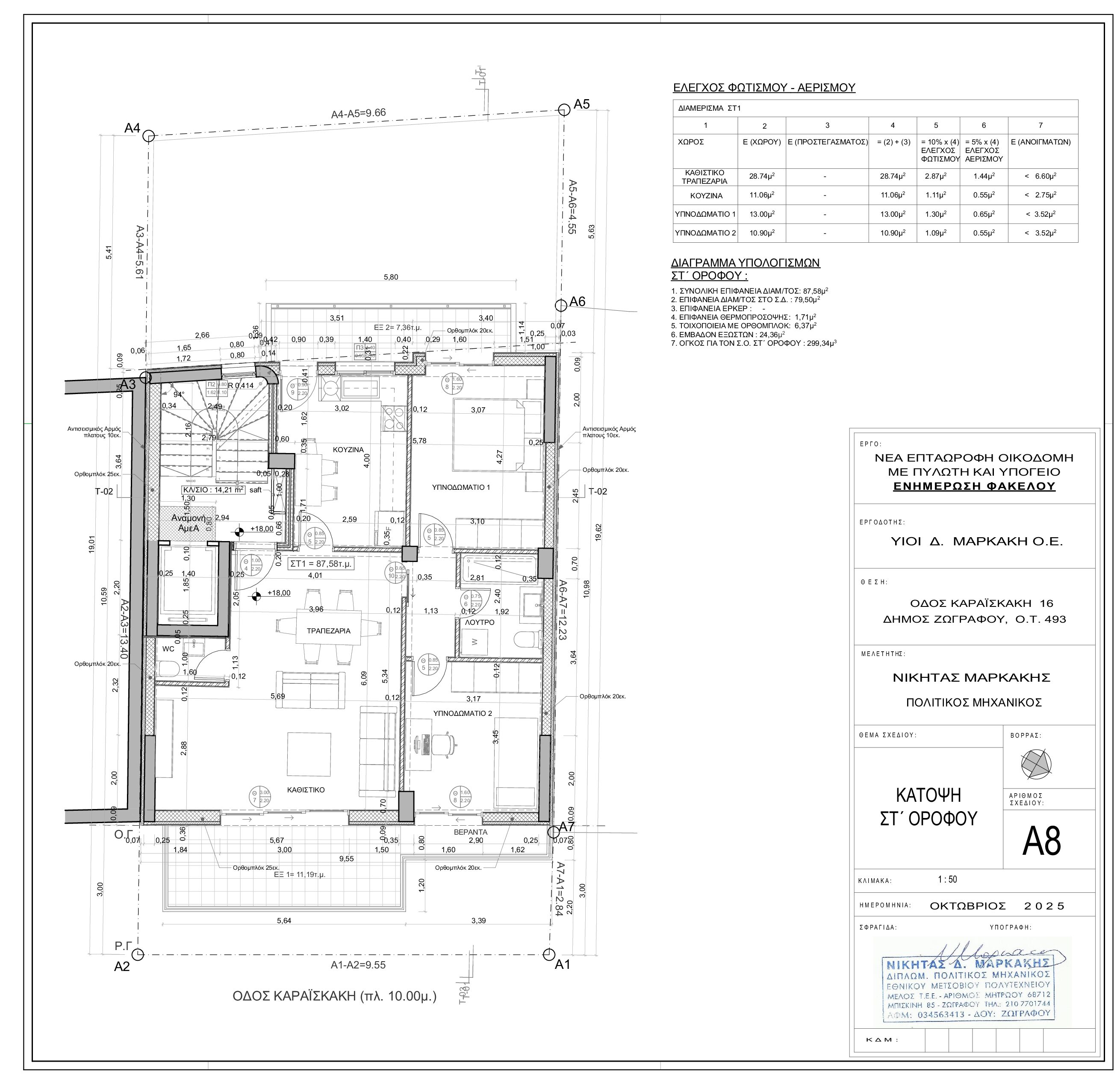
2 Διαμερίσματα 87,58 τ.μ. σε  ΣΤ΄ , Ζ ‘ , όροφο.
Αποτελούνται από : 2 Υ/Δ , 1 W.C. , 1 μπάνιο , κουζίνα, σαλόνι. Τα δάπεδα θα είναι από  Γρανιτοπλακάκια Α’ ποιότητος . Θα υπάρχει αυτόνομο σύστημα  θέρμανσης –  ψύξης  με αντλίες θερμότητας , ηλιακός θερμοσίφωνας, συναγερμός. Διατίθενται θέσεις στάθμευσης  και αποθήκες στην πιλοτή  και το υπόγειο και  φωτοβολτα’ι’κά για το κοινόχρηστο ρεύμα. Ενεργειακή κατηγορία Α+ .
Τηλ. επικοινωνίας : 6936610058 , 6947370732 , 2107701744 , 2107791833
ΔΕΙΤΕ ΤΟ ΣΤΟΝ ΧΑΡΤΗ:
https://maps.app.goo.gl/DBXnSmAB8ovoiuR66